Maranello ad.ze via per Castelnuovo
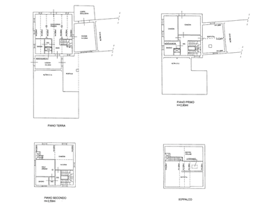
VD4171 Golf Club libera Villa bifamiliare libera subito con ampio giardino privato. Abitazione principale disposta su tre piani con ingresso, ampio salone con zona pranzo e soggiorno, cucina molto grande con caminetto centrale per la cottura a brace, bagno e ascensore al piano terra, disimpegno, tre ampie camere e bagno al piano primo, due camere, bagno e soppalco con sauna al piano secondo. Appartamento con ingresso indipendente composto da soggiorno-pranzo, cucinotto, disimpegno, due camere e bagno. Completano la proprietà un fabbricato ad uso ricovero attrezzature di 40 mq posto nel giardino privato, due ampi garage di 25 mq cadauno e quattro posti auto coperti. Contesto molto esclusivo con accesso diretto al campo di gioco.

Ascensore Si

Mq 550 - Locali 12 - Camere 8 - Bagni 4 - Box 2 - Mq Box 55 - Posti auto 4 - Mq Giardino 1300

Riscaldamento Autonomo - Tipo Riscaldam. Caldaia a Condensazione

Orientamento Nord Ovest Sud Est - Lati Liberi 4 - Consegna Libero

Stato Immobile Ottimo - Grado Signorile - Posizione Campagna - Panorama Vista Giardino - Giardino Privato - Arredi Semi Arredato - Tipo Soggiorno Doppio - Tipo Cucina Abitabile - Tipo Impianto Pavimento - Fonte Energetica Gas - Acqua Calda Autonoma - Raffrescamento Split - Infissi Legno Doppio Vetro - Serramenti Ottimo - Persiana Oscurante Legno - Pavim. Giorno Gres Porcellanato - Pavim. Notte Gres Porcellanato - Pavim. Cucina Gres Porcellanato - Pavim. Bagno Gres Porcellanato - Accesso Disabili Nessuna Barriera
ACCESSORI: Antifurto, Aria Condizionata, Camino, Cancello Elettrico, Doppi Vetri, Doppio Ingresso, Impianto Satellitare, Lavanderia, Parco Condominiale, Porta Blindata, Ripostiglio, Video Citofono, Zanzariere
Spese cond.li € 6.000 / anno
Classe E
Prezzo Riservato
Per vedere tutte le foto
vai su gruppomore.it
e inserisci il codice
VD4171
oppure inquadra il qr code
Qr Code