Nonantola
MO802_6, Nostra esclusiva, Nonantola, in zona verde e residenziale palazzina di prossima realizzazione (Classe Energetica A4) disponibile attico di 165 mq. ubicato al secondo e ultimo piano con ascensore.
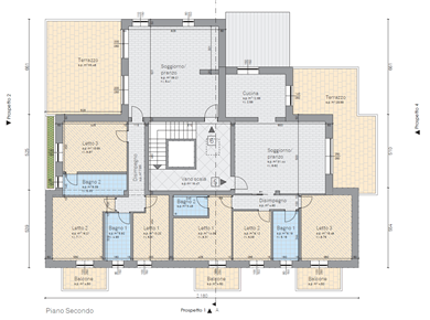
App.to così disposto: ingresso nel soggiorno con angolo cottura e terrazzo di 33 mq, cucina abitabile, dis. notte, tre camere da letto di cui due con balcone e due bagni. Dotato inoltre come pertinenze di autorimessa al piano terra.
Caratteristica peculiare dell’intervento è l’adozione di avanzate tecnologie impiantistiche d’avanguardia volte al massimo contenimento del consumo energetico nel pieno rispetto dell’ambiente, infatti tutte le unità immobiliari saranno edificate in classe “A4” (secondo la delibera della Regione Emilia Romagna dgr. 20 luglio 2015, n. 967).
Il capitolato prevede finiture di pregio tutte personalizzabili, pavimenti in ceramica grandi formati e parquet, rubinetterie e sanitari di design, riscaldamento a pavimento, aria condizionata, tapparelle motorizzate, impianto per il ricircolo dell'aria meccanizzato, pannelli fotovoltaici, domotica e predisposizione per antifurto e videosorveglianza condominiale.
Possibilità di personalizzazione degli spazi e delle finiture interne.
Prezzo: 393.346 €.
Consegna dicembre 2024

Piano Secondo - Totale piani 2 - Ascensore Si

Mq 171 - Locali 5 - Camere 3 - Mq Balcone 9

Riscaldamento Conta Calorie - Tipo Riscaldam. Caldaia

Lati Liberi 3

Stato Immobile Prossima Realizzazione - Grado Signorile - Giardino Privato - Tipo Soggiorno Soggiorno - Tipo Cucina Angolo Cottura - Tipo Impianto Pavimento - Acqua Calda Autonoma - Raffrescamento Split - Infissi PVC Doppio Vetro - Serramenti Nuovo - Persiana Tapparella PVC - Pavim. Giorno Gres Porcellanato - Pavim. Notte Parquet - Pavim. Cucina Gres Porcellanato - Pavim. Bagno Gres Porcellanato
ACCESSORI: Aria Condizionata, Doppi Vetri, Impianto Fotovoltaico, Impianto Satellitare, Porta Blindata, Tapparelle Elettriche, Video Citofono, Zanzariere
Classe A40,4 kWh/m²a
Prezzo € 393.346
Per vedere tutte le foto
vai su gruppomore.it
e inserisci il codice
MO802_6
oppure inquadra il qr code
Qr Code