Formigine (Colombaro)
VB0628, all'interno del Golf Club di Colombaro, in zona verde e tranquilla vendesi villa residenziale disposta su due piani collegati tra loro da scala interna composta da:
P.T.: doppio portico, soggiorno, cucina, cantina, bagno, giardino di pertinenza e pergolato per rimessa auto;
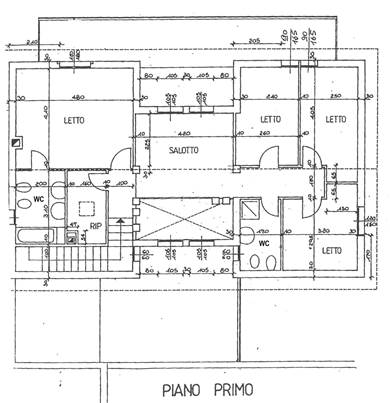
P.1.: disimpegno, quattro camere da letto, salotto/studio e due bagni;
Completano l'unità in corpo staccato due garage al piano terra.
Richiesta €. 850.000

Ascensore No

Mq 295 - Locali 9 - Camere 4 - Bagni 3 - Box 2

Riscaldamento Autonomo - Tipo Riscaldam. Caldaia

Orientamento Nord Ovest Sud Est - Lati Liberi 4 - Consegna Al rogito

Stato Immobile Buono - Grado Signorile - Panorama Vista Giardino - Giardino Privato - Tipo Soggiorno Soggiorno - Tipo Cucina Abitabile - Tipo Impianto Radiatori - Fonte Energetica Metano - Acqua Calda Autonoma - Raffrescamento Split - Infissi PVC Doppio Vetro - Serramenti Buono - Persiana Oscurante Legno - Pavim. Giorno Parquet - Pavim. Notte Parquet - Pavim. Cucina Parquet - Pavim. Bagno Ceramica
ACCESSORI: Aria Condizionata, Doppi Vetri, Lavanderia, Parco Condominiale, Passaggio Automobilistico, Passaggio Pedonale, Piscina, Porta Blindata, Ripostiglio, Video Citofono, Zanzariere
Spese cond.li € 2.400 / anno
Classe G
Prezzo € 850.000
Per vedere tutte le foto
vai su gruppomore.it
e inserisci il codice
VB0628
oppure inquadra il qr code
Qr Code