Carpi
VX2939 Proponiamo un esclusivo Immobile commerciale di rara bellezza adatto per chi desidera trasmettere una immagine di elevata rappresentanza della propria attività.

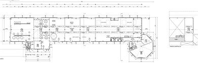
L'immobile in vendita è ubicato in una zona limitrofe a Carpi attualmente adibito ad attività di produzione di prodotti tipici locali (capannone / opificio, ecc.... ) ed in parte adibita ad uffici.

Area di attività produttiva composta da 1440 mq + 180 di ufficio + 88 di soppalco - TOTALE 1708 mq + porticati vari. Altezza capannone min 5,09 max 7,40. con bellissimi travi in legno a vista

Classe energetica C

Ascensore No

Mq 1700 - Locali 10 - Mq Giardino 8600

Riscaldamento Autonomo - Tipo Riscaldam. Pompa di Calore

Lati Liberi 4

Stato Immobile Ottimo - Grado Signorile - Tipo Impianto Aria - Raffrescamento Split
Classe C
Prezzo € 1.550.000
Per vedere tutte le foto
vai su gruppomore.it
e inserisci il codice
VX2939
oppure inquadra il qr code
Qr Code