Carpi
Immobile adatto per chi desidera trasmettere una immagine di alta rappresentanza.

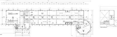
VX2939 in zona limitrofe a Carpi vendesi bellissima struttura di rappresentanza attualmente adibita ad attività di produzione di prodotti tipici locali (capannone / opificio, ecc.... ) ed in parte adibita ad uffici.

Area attività produttiva di 1440 mq + 180 di ufficio + 88 di soppalco - TOTALE 1708 mq + porticati vari. Altezza capannone min 5,09 max 7,40.

Possibilità di acquistare ulteriore terreno agricolo adiacente di 5 ettari attualmente con vigna. Richiesta di € 300.000

Possibilità di abbinare anche una bellissima villa su 3 piani di 679 mq con piscina adiacente.

Ascensore No

Mq 1700 - Locali 10 - Mq Giardino 8600

Classe C
Prezzo € 1.600.000
Per vedere tutte le foto
vai su gruppomore.it
e inserisci il codice
VX2939
oppure inquadra il qr code
Qr Code