Castelnuovo Rangone (Montale) ad.ze via Zanzalose
4 o più locali
Foto Formato Reale
APPARAMENTO CON AMPIO GIARDINO - 3 CAMERE
MO806D_04. Nostra esclusiva, MONTALE DI MODENA, in palazzina di nuovissima realizzazione, di sole 10 unità abitative in classe "A4", vendesi Appartamento su due livelli nr.04 di 204 mq. dotato di ingresso indipendente, giardino privato di 220 mq., autorimessa con accesso diretto alla proprietà e posto auto.
La costruzione antisismica è realizzata prestando particolare attenzione al contenimento del consumo energetico e al confort abitativo. Il capitolato con finiture di pregio, pavimenti in ceramica grandi formati e parquet, rubinetterie e sanitari di design, riscaldamento e raffrescamento a pavimento, tapparelle motorizzate, impianto di ventilazione meccanica controllata, domotica, pannelli fotovoltaici e videosorveglianza condominiale. APE CL. A4.
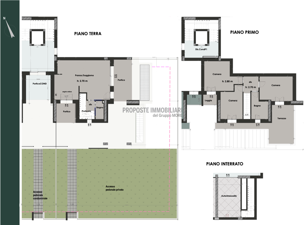
Appartamento così disposto: PT: ingresso, soggiorno e bagno; giardino di pertinenza e scala privata che porta all'autorimessa al piano interrato. P1°: 3 camere da letto dotate di terrazzo e bagno.
L'abitazione è dotata di posto auto scoperto assegnato al piano terra.
Pronto da consegnare. EURO 495.000
Caratteristiche
Spese cond.li
€ 1.000 / anno
Stato Immobile
Prossima Realizzazione
Tipo Cucina
Angolo Cottura
Riscaldamento
Conta Calorie
Tipo Riscaldam.
Pompa di Calore
Fonte Energetica
Fotovoltaico
Acqua Calda
Centralizzata
Pavim. Giorno
Gres Porcellanato
Pavim. Cucina
Gres Porcellanato
Pavim. Bagno
Gres Porcellanato
Accesso Disabili
Nessuna Barriera
Isolamento termico
Cappotto esterno
Isolamento acustico
Isolamento completo
Accessori
Aria Condizionata, Ascensore, Bagno Handicap, Cancello Elettrico, Doppi Vetri, Fibra Ottica, Impianto Domotica, Impianto Fotovoltaico, Impianto Satellitare, Passaggio Automobilistico, Passaggio Pedonale, Porta Blindata, Rete Dati, Tapparelle Elettriche, Video Citofono, Video Sorveglianza
Planimetrie
PLANIMETRIA

PLANIMETRIA

Posizione su mappa
ad.ze via Zanzalose , Castelnuovo Rangone (MO)